пятница, 9 марта 2012 г.

Минималистский домик от студии Pokorny Architekti в Словении

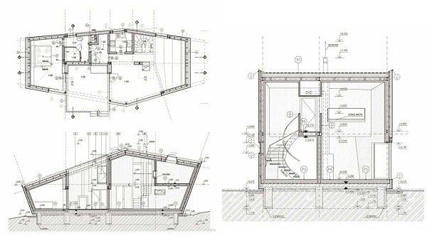
Weekend House – минималистский дом от Pokorny Architekti в Словении


Weekend House – дом выходного дня, построенный по проекту специалистов из словенской архитектурной студии Pokorny Architekti. Расположено это элегантное минималистское, но очень близкое к своему естественному окружению, в непосредственной близости от основного жилья его владельца - в маленькой деревеньке Nosice с видом на живописные горы Javorniky Mountains (Словакия).

Weekend House – минималистский дом от Pokorny Architekti в Словении


Живя и работая в Братиславе, заказчик выбрал для строительства загородного дома тихое уединенное место в окружении красивой природы.

Weekend House – минималистский дом от Pokorny Architekti в Словении



Weekend House – минималистский дом от Pokorny Architekti в Словении



Двухэтажный дом, ставший результатом творческого подхода архитекторов, непохож на уже существующие строения-соседи, но и не диссонирует с ними, деликатно выделяясь интеллектуальной простотой и естественной монументальностью, которая сродни близлежащим горам.

Weekend House – минималистский дом от Pokorny Architekti в Словении



Weekend House – минималистский дом от Pokorny Architekti в Словении


Теплые деревянные интерьеры как будто впускают в дом окружающую его природу. Просторная гостиная выступает в качестве основного пространства, где можно собраться всей семьей или с друзьями.

Weekend House – минималистский дом от Pokorny Architekti в Словении


Weekend House – минималистский дом от Pokorny Architekti в Словении



Зоны кухни и столовой находятся прямо здесь – открытая планировка призвана в еще большей степени способствовать объединению семьи у домашнего очага.

Weekend House – минималистский дом от Pokorny Architekti в Словении


Ассиметричная форма структуры имеет открытый атриум, декорированный слоистыми панелями древесины сосны и лиственницы, которые выполняют и теплоизоляционную функцию - как с внешней, так и с внутренней стороны. Эти природные материалы подчеркивают близость архитектуры нового обитателя деревеньки к природе.

Weekend House – минималистский дом от Pokorny Architekti в Словении



Дом оборудован сауной и джакузи, а на территории возле Weekend House есть все для комфортного времяпрепровождения на свежем воздухе в хорошую погоду, в любое время года.

Weekend House – минималистский дом от Pokorny Architekti в Словении



Weekend House – минималистский дом от Pokorny Architekti в Словении



С творчеством авторов проекта можно познакомиться, посетив официальный сайт их архитектурной студии, офис которой расположен в Братиславе:http://www.pokornyarchitekti.sk/

Комментариев нет:

Отправить комментарий