Dutchess House No.1 – экономичное энергоэффективное жилье от Grzywinski+Pons
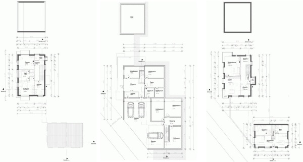
Dutchess House No.1 – уникальный частный дом, построенный по проекту архитекторов из американской студии Grzywinski+Pons в Миллертоне (Нью-Йорк, США). Изначально дом был задуман как загородное жилье для временного использования в ожидании городской квартиры, однако довольно быстро превратился в основное место жительства.


























































